• (OSMANİYE OSB) BÜYÜKTÜYSÜZ MAH. ATATÜRK CAD. NO:11 İÇ KAPI : 2 TOPRAKKALE/OSMANİYE

    info@dpsdoor.com.tr

  • +90 328 802 48 00
    +90 328 802 48 00



2-УХ ПАНЕЛЬНАЯ ДШ ЦЕНТРАЛЬНОГО ТИПА
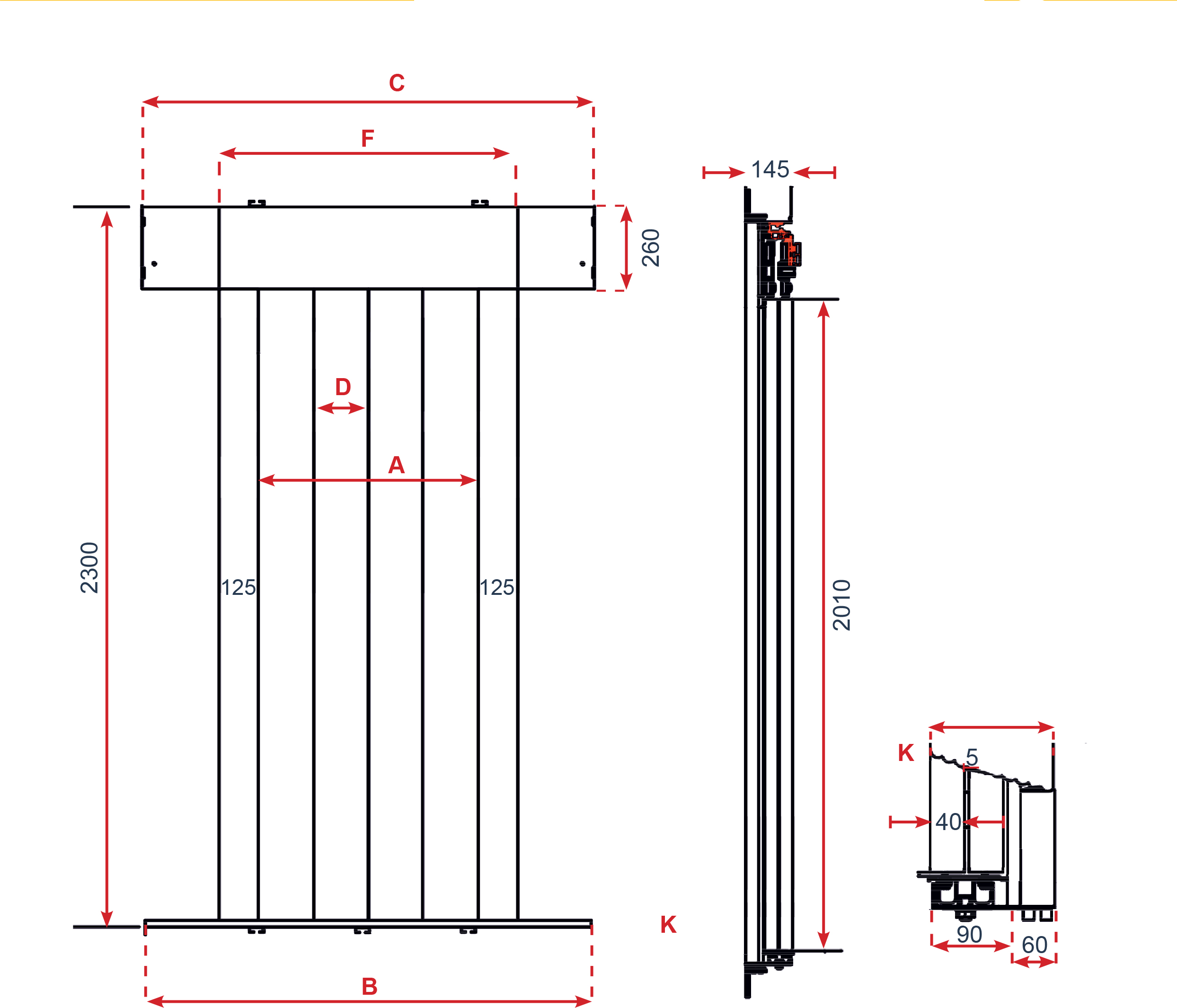
2 PANEL MERKEZ? KAT KAPISI

A
KAPI EN?

B
ALT KAZIK
C
MEKAN?ZMA
D
PANEL
F
KASA EN?
700 1400 1464 370 95
800 1600 1664 420 105
900 1800 1864 470 115
1000 2000 2064 520 125
1100 2200 2264 570 135
1200 2400 2464 620 145
1300 2600 2664 670 155
1400 2800 2864 720 165
2-УХ ПАНЕЛЬНАЯ ДШ БОКОВОГО ( ТЕЛЕСКОПИЧЕСКОГО) ТИПА
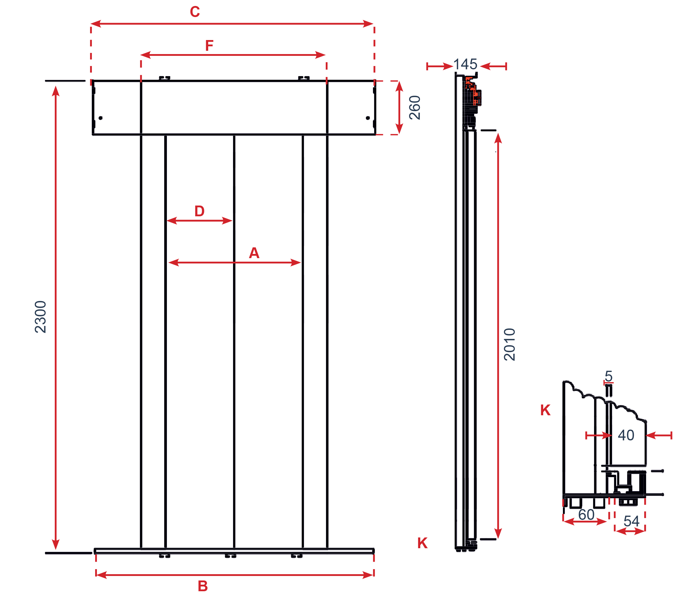
2 PANEL TELESKOP?K KAT KAPISI

A
KAPI EN?

B
ALT KAZIK
C
MEKAN?ZMA
D
PANEL
F
KASA EN?
700 1400 1464 370 95
800 1600 1664 420 105
900 1800 1864 470 115
1000 2000 2064 520 125
1100 2200 2264 570 135
1200 2400 2464 620 145
1300 2600 2664 670 155
1400 2800 2864 720 165
3-ЕХ ПАНЕЛЬНАЯ ДШ БОКОВОГО ( ТЕЛЕСКОПИЧЕСКОГО) ТИПА
3 PANEL TELESKOP?K KAT KAPISI

A
KAPI EN?

B
ALT KAZIK
C
MEKAN?ZMA
D
PANEL
F
KASA EN?
900 1800 1864 470 115
1000 2000 2064 520 125
1100 2200 2264 570 135
1200 2400 2464 620 145
1300 2600 2664 670 155
4-ЕХ ПАНЕЛЬНАЯ ДШ ЦЕНТРАЛЬНОГО ТИПА
4 PANEL MERKEZ? KAT KAPISI

A
KAPI EN?

B
ALT KAZIK
C
MEKAN?ZMA
D
PANEL
F
KASA EN?
1200 2400 2464 620 145
1300 2600 2664 670 155

2-УХ  ПАНЕЛЬНАЯ ДШ ЦЕНТРАЛЬНОГО ТИПА

2-УХ ПАНЕЛЬНАЯ ДШ ЦЕНТРАЛЬНОГО ТИПА



2-УХ  ПАНЕЛЬНАЯ ДШ ЦЕНТРАЛЬНОГО ТИПА

2-УХ ПАНЕЛЬНАЯ ДШ ЦЕНТРАЛЬНОГО ТИПА



2-УХ  ПАНЕЛЬНАЯ ДШ ЦЕНТРАЛЬНОГО ТИПА

2-УХ ПАНЕЛЬНАЯ ДШ ЦЕНТРАЛЬНОГО ТИПА



2-УХ  ПАНЕЛЬНАЯ ДШ ЦЕНТРАЛЬНОГО ТИПА

2-УХ ПАНЕЛЬНАЯ ДШ ЦЕНТРАЛЬНОГО ТИПА



2-УХ ПАНЕЛЬНАЯ ДШ БОКОВОГО ( ТЕЛЕСКОПИЧЕСКОГО) ТИПА

2-УХ ПАНЕЛЬНАЯ ДШ БОКОВОГО ( ТЕЛЕСКОПИЧЕСКОГО) ТИПА



2-УХ ПАНЕЛЬНАЯ ДШ БОКОВОГО ( ТЕЛЕСКОПИЧЕСКОГО) ТИПА

2-УХ ПАНЕЛЬНАЯ ДШ БОКОВОГО ( ТЕЛЕСКОПИЧЕСКОГО) ТИПА



2-УХ ПАНЕЛЬНАЯ ДШ БОКОВОГО ( ТЕЛЕСКОПИЧЕСКОГО) ТИПА

2-УХ ПАНЕЛЬНАЯ ДШ БОКОВОГО ( ТЕЛЕСКОПИЧЕСКОГО) ТИПА