• (OSMANİYE OSB) BÜYÜKTÜYSÜZ MAH. ATATÜRK CAD. NO:11 İÇ KAPI : 2 TOPRAKKALE/OSMANİYE

    info@dpsdoor.com.tr

  • +90 328 802 48 00
    +90 328 802 48 00



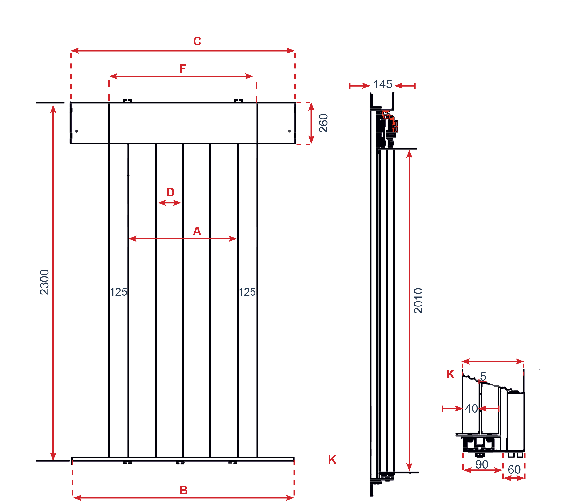
2 PANNELS CENTRAL FLOOR DOOR
2 PANEL MERKEZ? KAT KAPISI

A
KAPI EN?

B
ALT KAZIK
C
MEKAN?ZMA
D
PANEL
F
KASA EN?
700 1400 1464 370 95
800 1600 1664 420 105
900 1800 1864 470 115
1000 2000 2064 520 125
1100 2200 2264 570 135
1200 2400 2464 620 145
1300 2600 2664 670 155
1400 2800 2864 720 165
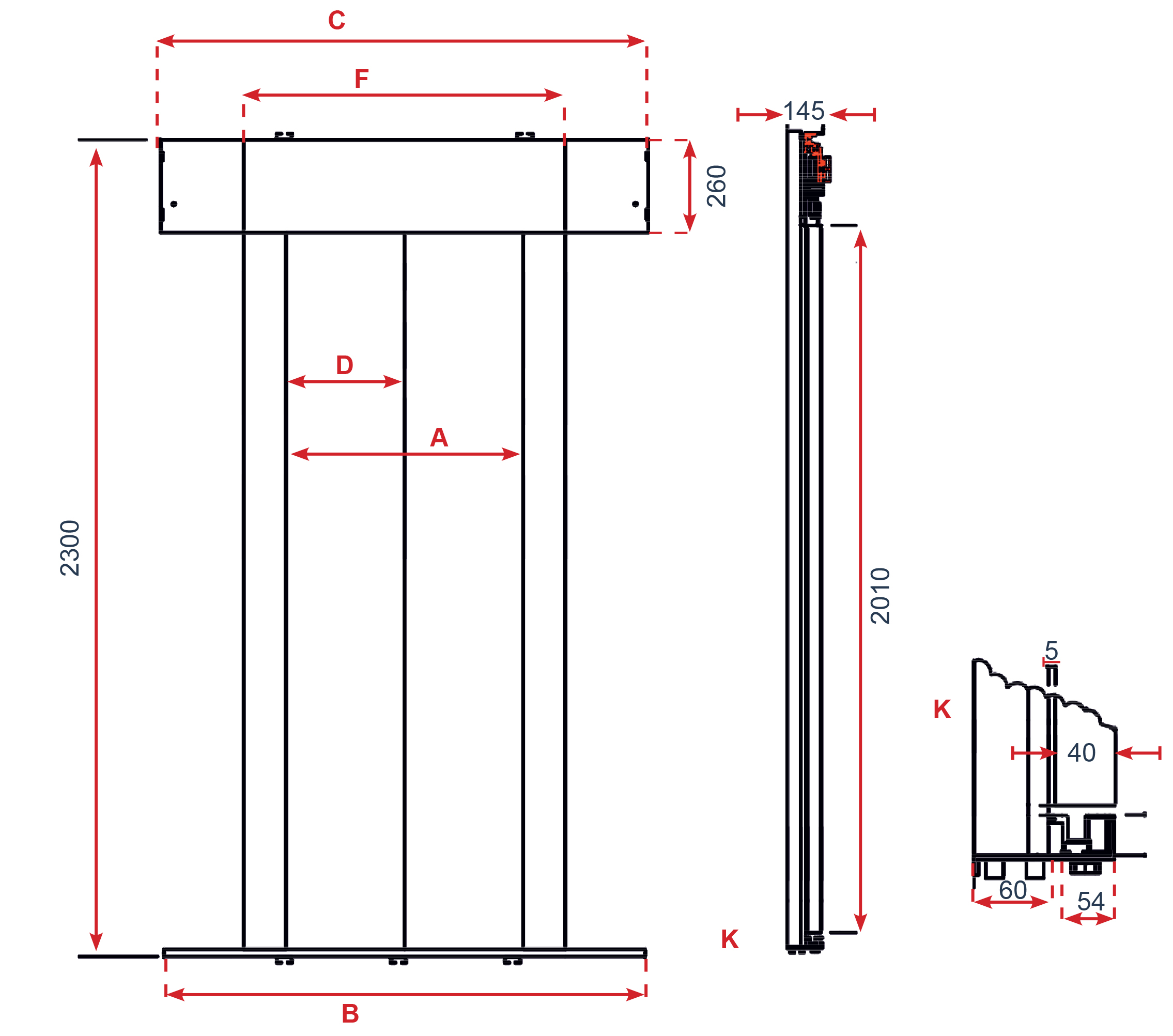
2 PANNELS SIDE OPENING FLOOR DOOR
2 PANEL TELESKOP?K KAT KAPISI

A
KAPI EN?

B
ALT KAZIK
C
MEKAN?ZMA
D
PANEL
F
KASA EN?
700 1400 1464 370 95
800 1600 1664 420 105
900 1800 1864 470 115
1000 2000 2064 520 125
1100 2200 2264 570 135
1200 2400 2464 620 145
1300 2600 2664 670 155
1400 2800 2864 720 165
3 PANNELS SIDE OPENING FLOOR DOOR
3 PANEL TELESKOP?K KAT KAPISI

A
KAPI EN?

B
ALT KAZIK
C
MEKAN?ZMA
D
PANEL
F
KASA EN?
900 1800 1864 470 115
1000 2000 2064 520 125
1100 2200 2264 570 135
1200 2400 2464 620 145
1300 2600 2664 670 155
4 PANNELS CENTRAL FLOOR DOOR
4 PANEL MERKEZ? KAT KAPISI

A
KAPI EN?

B
ALT KAZIK
C
MEKAN?ZMA
D
PANEL
F
KASA EN?
1200 2400 2464 620 145
1300 2600 2664 670 155

2 Panel Merkezi Kapı

2 Panel Merkezi Kapı



2 Panel Merkezi Kapı Açık

2 Panel Merkezi Kapı Açık



2 PANNELS CENTRAL GLASS DOOR

2 PANNELS CENTRAL GLASS DOOR



2 Panel Merkezi Dekostil Kapı

2 Panel Merkezi Dekostil Kapı



2 Panel Teleskopik Kapı

2 Panel Teleskopik Kapı



2 Panel Teleskopik Dekostil Kapı

2 Panel Teleskopik Dekostil Kapı



2 Panel Teleskopik Camlı

2 Panel Teleskopik Camlı