• Başpınar Mahallesi 3.Organize Sanayi Bölgesi 83305 Nolu Cadde, No:7 Depsan Otomotiv Sitesi Şehitkamil - Gaziantep

    info@dpsdoor.com.tr

    info@vipsanasansor.com.tr

  • +90 342 235 09 55
    +90 342 235 09 57



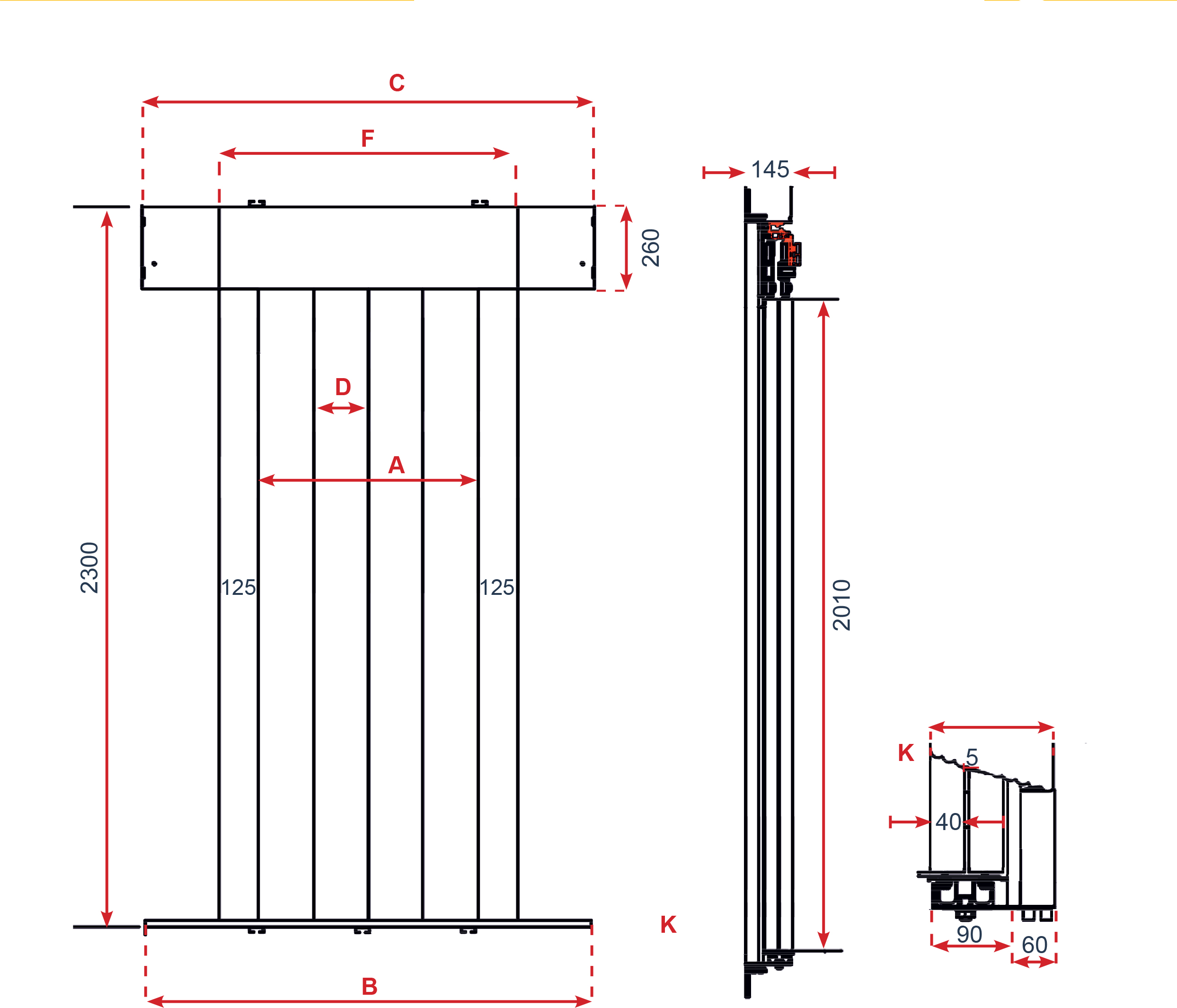
2 PANEL MERKEZİ KAT KAPISI
2 PANEL MERKEZİ KAT KAPISI

A
KAPI ENİ

B
ALT KAZIK
C
MEKANİZMA
D
PANEL
F
KASA ENİ
700 1400 1464 370 95
800 1600 1664 420 105
900 1800 1864 470 115
1000 2000 2064 520 125
1100 2200 2264 570 135
1200 2400 2464 620 145
1300 2600 2664 670 155
1400 2800 2864 720 165
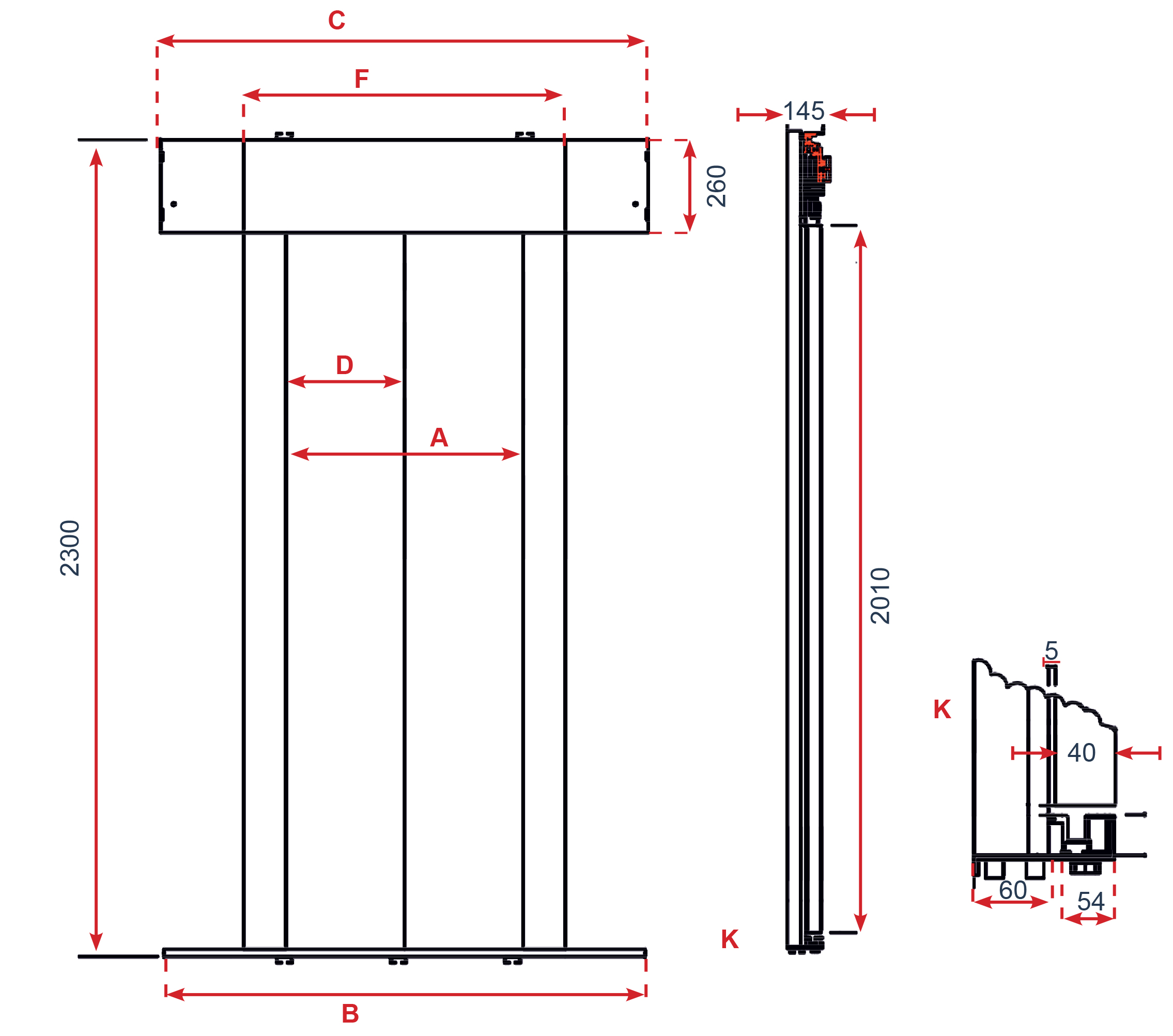
2 PANEL TELESKOPİC KAT KAPISI
2 PANEL TELESKOPİK KAT KAPISI

A
KAPI ENİ

B
ALT KAZIK
C
MEKANİZMA
D
PANEL
F
KASA ENİ
700 1400 1464 370 95
800 1600 1664 420 105
900 1800 1864 470 115
1000 2000 2064 520 125
1100 2200 2264 570 135
1200 2400 2464 620 145
1300 2600 2664 670 155
1400 2800 2864 720 165
3 PANEL TELESKOPİC KAT KAPISI
3 PANEL TELESKOPİK KAT KAPISI

A
KAPI ENİ

B
ALT KAZIK
C
MEKANİZMA
D
PANEL
F
KASA ENİ
900 1800 1864 470 115
1000 2000 2064 520 125
1100 2200 2264 570 135
1200 2400 2464 620 145
1300 2600 2664 670 155
4 PANEL MERKEZİ KAT KAPISI
4 PANEL MERKEZİ KAT KAPISI

A
KAPI ENİ

B
ALT KAZIK
C
MEKANİZMA
D
PANEL
F
KASA ENİ
1200 2400 2464 620 145
1300 2600 2664 670 155

2 Panel Merkezi Kapı

2 Panel Merkezi Kapı



2 Panel Merkezi Kapı Açık

2 Panel Merkezi Kapı Açık



2 Panel Merkezi Camlı Kapı

2 Panel Merkezi Camlı Kapı



2 Panel Merkezi Dekostil Kapı

2 Panel Merkezi Dekostil Kapı



2 Panel Teleskopik Kapı

2 Panel Teleskopik Kapı



2 Panel Teleskopik Dekostil Kapı

2 Panel Teleskopik Dekostil Kapı



2 Panel Teleskopik Camlı

2 Panel Teleskopik Camlı